-

- Sopto Home
-

- Special Topic
-

- Fiber Optics knowledge
-

- How to Measure Pre-Terminated Fiber Optic Cables in a Data Cente
Fiber Optics knowledge
- Maintained Methods of Fusion Splicer Parts
- How to Use the Fiber Optic Cleaver?
- What are Fixed Attenuators & Variable Attenuators?
- Deployable Fiber Optic Systems for Harsh Mining Environments
- Developing Miniature Fiber Optic Cable Has Become the Trend
- Fiber Optic Cleaning Procedures
- 6 Steps to Selecting a Fiber Optic Cable
- Signal Attenuation Introduction
- How Fiber Transmission Works?
SOPTO Special Topic
Certificate



Guarantee
Except products belongs to Bargain Shop section, all products are warranted by SOPTO only to purchasers for resale or for use in business or original equipment manufacturer, against defects in workmanship or materials under normal use (consumables, normal tear and wear excluded) for one year after date of purchase from SOPTO, unless otherwise stated...
Return Policies
Defective products will be accepted for exchange, at our discretion, within 14 days from receipt. Buyer might be requested to return the defective products to SOPTO for verification or authorized service location, as SOPTO designated, shipping costs prepaid. .....
Applications
Fiber Optis can be used in so many fields:
Data Storage Equipment
Interconnects,Networking
Gigabit Ethernet
FTTx, HDTV,CATV
Aerospace & Avionics
Data Transfer Tests
Network Equipment
Broadcast Automotive
Electronics,Sensing
Oil & Gas, Imaging
Outside Plant,Central Office
Harsh Environment
Data Transmission
Illumination,Institutions
Ship to Shore,Education
Simulation,Military,Space
Unmanned Aerial Vehicles
Semiconductor Equipment
Diagnostics & Troubleshooting
Premise Networks Carrier Networks
Independent Telecommunication Providers
SOPTO Products
- Fiber Optic Transceiver Module
- High Speed Cable
- Fiber Optical Cable
- Fiber Optical Patch Cords
- Splitter CWDM DWDM
- PON Solution
- FTTH Box ODF Closure
- PCI-E Network Card
- Network Cables
- Fiber Optical Adapter
- Fiber Optical Attenuator
- Fiber Media Converter
- PDH Multiplexers
- Protocol Converter
- Digital Video Multiplexer
- Fiber Optical Tools
- Compatible
Performance Feature
Fiber Optics knowledge
Recommended


How to Measure Pre-Terminated Fiber Optic Cables in a Data Center?
Have you ever installed fiber optic cables in a data center and come up short? How about having too much cabling that it becomes bulky and simply unmanageable? The reason for either of these issues is inaccurate measuring.
There are a few simple steps to remember when measuring pre-terminated fiber optic cables for your or your client’s data center.

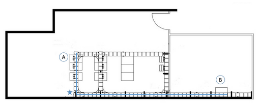
Original Diagram Courtesy of Legrand
Measurement Process
1. Calculate the entire linear cable path throughout the data center – from point A to point B
- This may be easiest using a scaled blue print, similar to the diagram above
- Make sure to measure from the farthest edges of the rack or cabinet
2. Calculate your corner measurements by measuring the depth of your conveyance system and doubling it.
- This gives you your corner bend radius
- Demonstrated where the star is located on the diagram above
3. Calculate your total horizontal cable path by simply adding together your linear and corner measurements – steps 2 & 3
4. Determine the vertical length of your data center cabling, including your gap measurement
- From an under-the-floor conveyance system – measure from under the floor to the bottom of the cabinet or rack
- From an over-the-head conveyance system – measure from the top of the overhead conveyance system to the top of the cabinet or rack
5. Add an additional 12 feet to your total measurements
- This will be used as slack which allows for variation and movement of cabling

Under the Floor and Over the Head Overview
Glossary:
- Conveyance System: The system that holds your network cables
- Gap Measurement: The space between your rack or cabinet and the conveyance system
- Under-the-Floor Conveyance System: When the conveyance system is located under the floor, below your cabinet or rack
- Over-the-Head Conveyance System: When the conveyance system is located above the cabinet or rack
For more information, please browse our website.




